Lot 6 – Lyndon Creek
Lot Price – $700,000
2.36 Acres / 73,777 SF
Additional Information:
Address: 
1030 Lyndon Drive Milton, GA 30004
Setbacks:
Front – 165’, Side – 25’, Rear – 50’
Lot features:
Creek buffer, Basement, Backs up to Horse Farm
Helpful Resources:
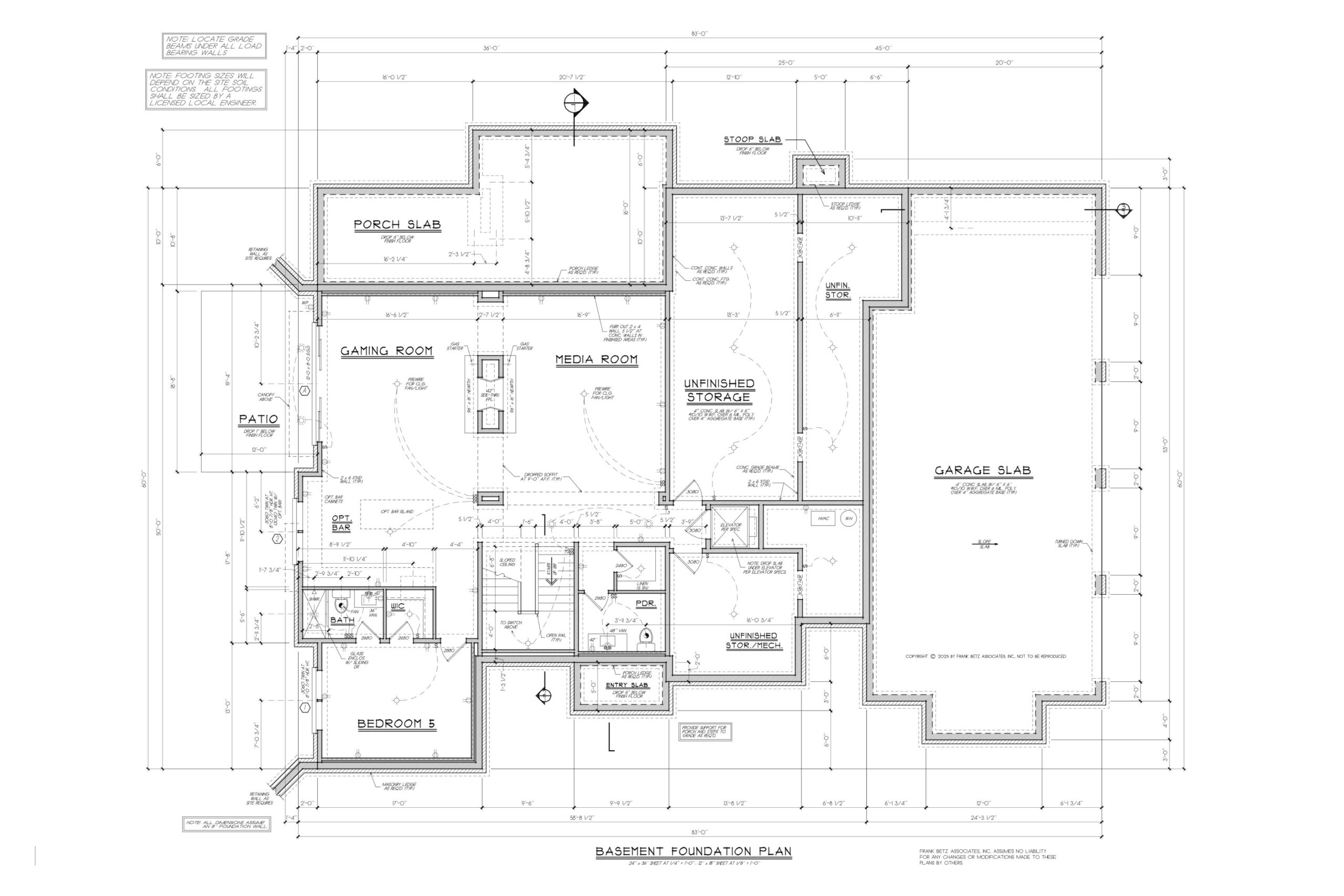
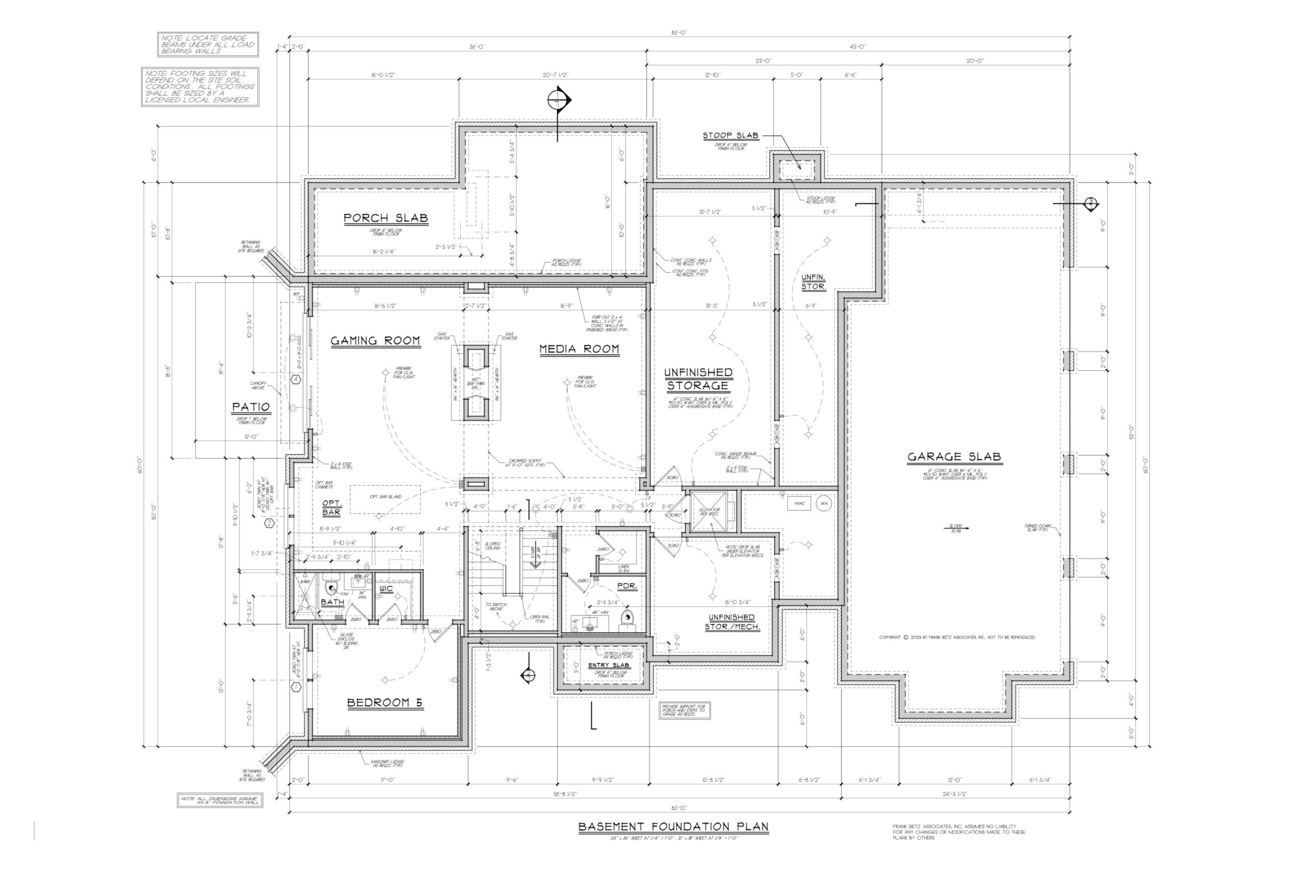
			The Magnolia Manor Plan
			Built on Precision and Compliance
Every Hydrangea Hall home is designed to meet the highest standards of construction excellence. All work complies with national, state, and local building codes to ensure long-lasting safety and stability. Contractors are required to verify on-site conditions, footing depths, and soil integrity before building begins—because precision at every step ensures a flawless foundation.
Engineered for Strength and Endurance
From foundation to framing, every structural element is carefully designed to carry loads efficiently through all levels of the home. All wood, steel, and concrete materials must meet strict quality standards, and every major component is reviewed or stamped by licensed engineers. The result is a home built to stand strong for generations while meeting regional codes and environmental conditions.
			
			Engineered for Strength and Endurance
From foundation to framing, every structural element is carefully designed to carry loads efficiently through all levels of the home. All wood, steel, and concrete materials must meet strict quality standards, and every major component is reviewed or stamped by licensed engineers. The result is a home built to stand strong for generations while meeting regional codes and environmental conditions.
			Crafted with Care and Structural Integrity
Each frame and connection reflects thoughtful engineering and craftsmanship. Joists, rafters, and beams align seamlessly for balanced weight distribution, while durable APA-rated plywood and OSB panels provide lasting rigidity. Engineered trusses, precise bracing, and double-strongback reinforcements ensure your home remains secure, efficient, and beautifully constructed from top to bottom.
